如图所示,SHK-KX型主动干预型快速消弧选线装置主要由前置断路器DL、分相接地开关JD、电压互感器PT、及高压熔断器RD、自脱离过电压保护器、导体自限流强阻尼抑制器SIDR(DR)、微机综合控制器ZK等组成。
系统正常运行时,装置面板显示系统运行电压、开口三角电压以及装置运行状态;当系统发生电压越限(默认值为高于额定电压的130%,或低于额定电压的70%),装置立即发生警报信号并输出开关量接点,面板显示故障时间,类型和各相电压。
当开口三角电压UΔ电压超过设定阈值时,表明系统发生故障,微机综合控制器ZK立即启动中断,进入故障类型判别和线路零序电流的数据采集程序,立即根据PT二次输出信号Ua、Ub、Uc,进行单相接地、断线运行等故障类型和相别的判断。
当系统发生单相接地故障时,则在30ms以内控制故障相接地开关合闸,将故障相直接接地,熄灭接地电弧,并将弧光接地过电压限制在线电压的水平,控制故障的发展。
同时小电流选线模块根据电弧熄灭前后只有故障线路零序电流变化最大,而非故障线路基本不变这一重要特征(即最大增量原理),快速准确地给出故障线号。
当发生断线故障时,装置发出报警信号并输出开关量接点,以便用户对有可能因断线运行导致误动作的继电保护进行闭锁。
装置配置有三只V-A特性相近的2.5倍抗饱和电压互感器,中性点装设有特制热敏特性一次消谐器(导体式自限流强阻尼抑制器),正常运行时阻值很小,不影响计量精度也不会影响测量误差。当电压互感器中性点严重不平衡或发生铁磁谐振时,特制热敏特性一次消谐器迅速将自身的阻值增大4~5个数量级,破坏铁磁谐振的条件,并迫使电压互感器退出饱和状态,有效避免“烧PT、爆保险” 事故。若用户选用微机二次消谐器,开口三角电压越限后,微机综合控制器ZK根据开口三角电压幅值和频率迅速判断出谐振类型,并可根据用户需要投入相应的阻尼电阻。

系统发生单相接地故障后,装置在30ms内将故障相直接接地,强行熄灭接地电弧,限制弧光接地过电压,控制故障进一步发展并可安全运行至少2小时,同时选线模块根据电弧熄灭前后线路零序电流的变化准确报出故障线号,为保证重要用户连续不间断供电的前提下处理接地故障创造了充分的条件。
装置在30ms将故障相直接接地后,大幅度降低了故障相对地残压、接触电压和跨步电压,大大减轻了对人畜触电的伤害程度,有效减少触电伤亡事故。
当电压互感器故障、现场接线错误、装置元件损坏等原因导致选相错误,致使非故障相接地开关误合闸时,或因装置动作后持续时间过长非故障相绝缘薄弱环节又发生对地击穿时,则已合闸的故障相接地开关可立即在5ms左右分闸,有效避免馈线跳闸事故。
每台产品均需在1:1额定电压试验台上经过100次接地试验,必须达到选相准确率100%、选线准确率100%、故障相开关正确动作100%、后台报文准确率100%才可出厂。装置经多次现场人工接地试验及十多年的运行考验,装置选相、选线、动作及上传数据准确率极高。
装置可选配选线跳闸模块,线路发生单相接地时,用户自行选择跳闸,切除故障线路。
装置动作后30s(可根据现场需要设定)自动复位一次,若是瞬时性接地故障则系统恢复正常,若是永久性接地故障则故障相接地开关合闸后不再分闸,待运行值班人员完成转移负荷的倒闸操作并退出故障线路后在远方或就地复位。装置选线功能原理可扩展到站外用于准确识别故障区域。装置外形尺寸与普通电压互感器柜相当,现场实施方便。
装置动作后可允许至少630A的系统接地故障电容电流长期流过,保护性能不受电网规模的影响,既适用于电缆电网、混合电网,也适用于架空电网,无需检测系统电容电流。
★ 型号规格

额定电压:可在7.2、12、24、40.5中选取,分别表示7.2、12、24或40.5kV;
额定电流:可在630、1250中选取,分别表示630A或1250A;
开断电流:可在25、31.5、40中选取,分别表示25、31.5、40kA;
结构形式:可在D或G中选取,分别表示前级断路器结构或隔离手车结构。
★ 技术参数
|
序号 |
参数名称 |
单位 |
技术数据 |
||||
|
1 |
额定电压 |
kV |
7.2 |
12 |
24 |
40.5 |
|
|
2 |
额定绝 |
1min工频耐受电压 |
30 |
42 |
55 |
95 |
|
|
60 |
75 |
125 |
185 |
||||
|
3 |
额定短路开断电流(有效值) |
kA |
31.5、40 |
25、31.5 |
|||
|
4 |
额定短路关合电流(峰值) |
kA |
80、100 |
63、80 |
|||
|
5 |
额定短时耐受电流(有效值) |
kA |
31.5、40 |
25、31.5 |
|||
|
6 |
额定峰值耐受电流(峰值) |
kA |
80、100 |
63、80 |
|||
|
7 |
额定电流 |
A |
630、1250 |
||||
|
8 |
额定频率 |
Hz |
50 |
||||
|
9 |
单相接地动作时间 |
ms |
<30 |
||||
|
10 |
异相短路跳闸时间 |
ms |
20 |
||||
|
11 |
防护等级 |
外壳IP4X |
|||||
◆ 外形结构
户内式3~10kV柜体的参考尺寸为1000×1500×2300(宽×深×高);户外式35kV柜体参考尺寸为(1800×2600×2500宽×深×高);可以根据用户要求协商后特殊生产。
户内式10kV柜体结构及参考尺寸见下图
|
|
1.消弧控制器 2.微机消谐装置 3.综保 4.前级断路器(隔离手车) 5.电流互感器 6.PT高压熔断器 7.限流型强阻尼抑制器 8.电压互感器 9.自脱离过电压保护器 10.零序电流互感器 11.分相接地快速断路器 |
|
|
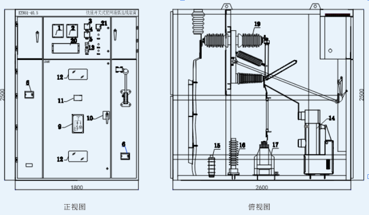
1.微机消谐装置 2.消弧控制器 3.电压表 4.电流表 5.电压转换开关 6.照明装置 7.辅助开关 8.操作机构 9.模拟指示牌 10.电磁锁 11.铭牌 12.观察窗 13.消弧投退转换开关 14.分相接地开关 15.导体式强阻尼抑制器 16.过电压保护器 17.电压互感器 18.高压熔断器19.隔离开关 20.小电流选线装置 21.温湿度控制器 |
|
用户须提供本装置安装地点的一次主接线图,所在母线最大和最小方式下的短路电流以及考虑母线并列运行时最大可能的系统对地电容电流。
我公司专业工程师将根据用户提供的系统参数和现场条件进行个性化设计,待用户签字确认后实施。
用户应明确装置现场安装空间、并柜方式、进出线方式。
环境温度、海拔高度或使用环境超出本装置的允许范围时,请在订货技术条件中详细注明,以便我公司为用户特殊设计、特殊供货。
★ 接入系统方式

★ 适用场所
产品可装设在35kV、110kV或220kV变电站的6kV、10kV或35kV主母线上。
本产品可用作快速控制单相接地故障的发展,并可同时快速准确地给出故障线号,为在不间断供电的情况下进行单相接地故障的处理创造充分条件。
本产品具备电压监测、越限报警等常规综保功能,并可向外部回路输出二次电压信号,可取代常规的电压互感器柜。
● 环境条件
环境温度:-25~+50℃
海拔高度:≤2000m
空气湿度:日平均湿度≤96%、月平均湿度≤90%
地震烈度:8度(水平加速度0.25g、垂直加速度0.105g)
周围环境:不得有粉尘、煤气、烟气等具有爆炸性、腐蚀性和易燃性的混合物
对于高海拔地区、户外场所、腐蚀性场所等运行环境恶劣的条件,订货时须明确提出,我方可根据装置的特殊运行环境,设计制造满足现场运行条件的产品。